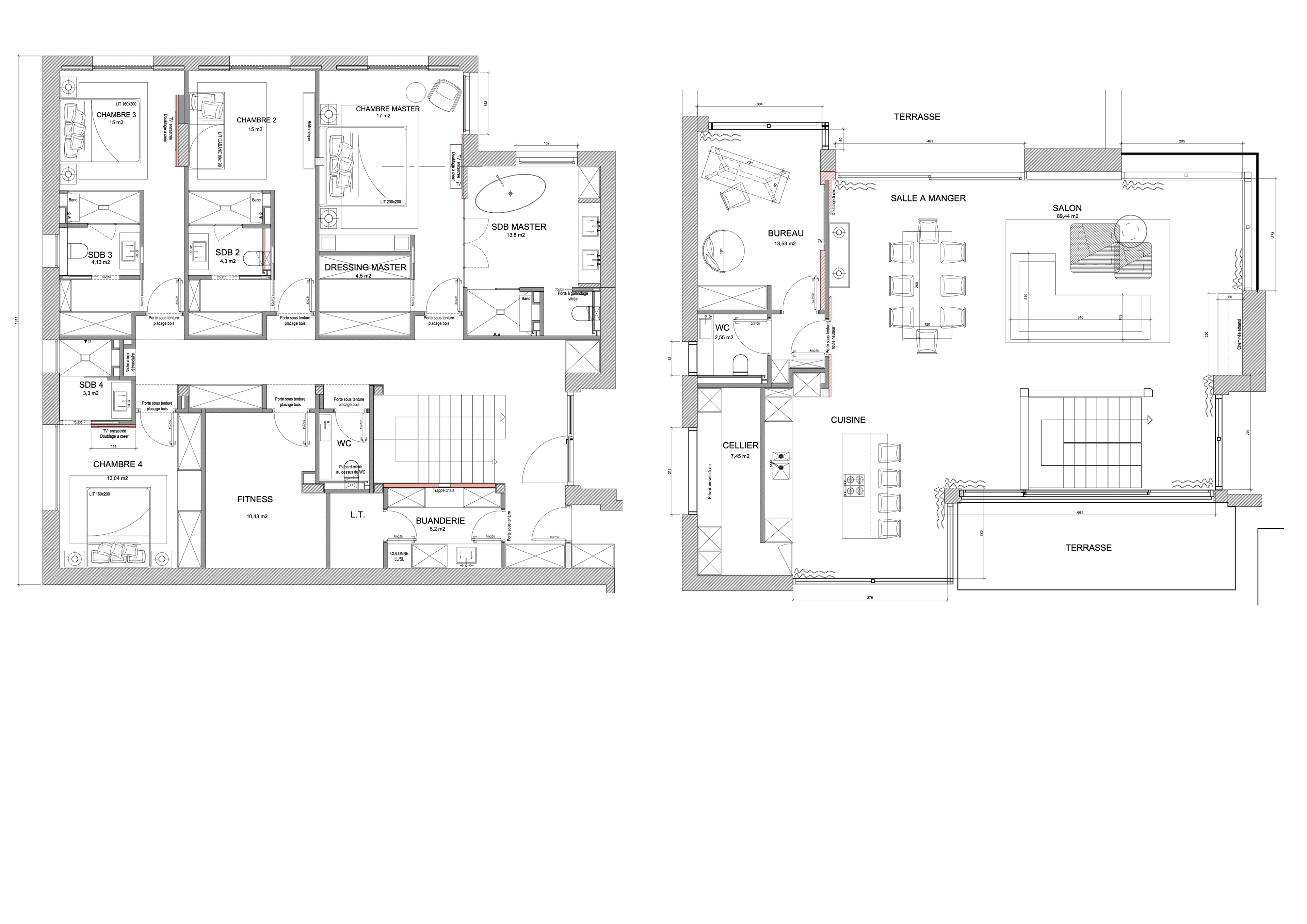
Construction neuve d’une villa contemporaine sur la Côte d’Azur, pensée pour offrir un cadre de vie élégant, moderne et parfaitement adapté au mode de vie des propriétaires.
J’ai assuré la mission complète : plans techniques et plans décoratifs, choix des matériaux en accompagnement client, ainsi que la coordination des artisans tout au long du chantier.
J’ai assuré la mission complète : plans techniques et plans décoratifs, choix des matériaux en accompagnement client, ainsi que la coordination des artisans tout au long du chantier.
L’objectif était de créer une villa sur-mesure, où chaque détail (volumes, lumière, textures et circulation) participe à une expérience de vie raffinée, confortable et fonctionnelle.
Un projet où l’architecture intérieure joue un rôle central pour mettre en valeur les espaces et révéler leur identité.
Un projet où l’architecture intérieure joue un rôle central pour mettre en valeur les espaces et révéler leur identité.
La collaboration avec MPMC Design a permis de réunir expertise technique et approche créative, donnant naissance à une réalisation contemporaine d’envergure.
CHANTIER EN COURS ...