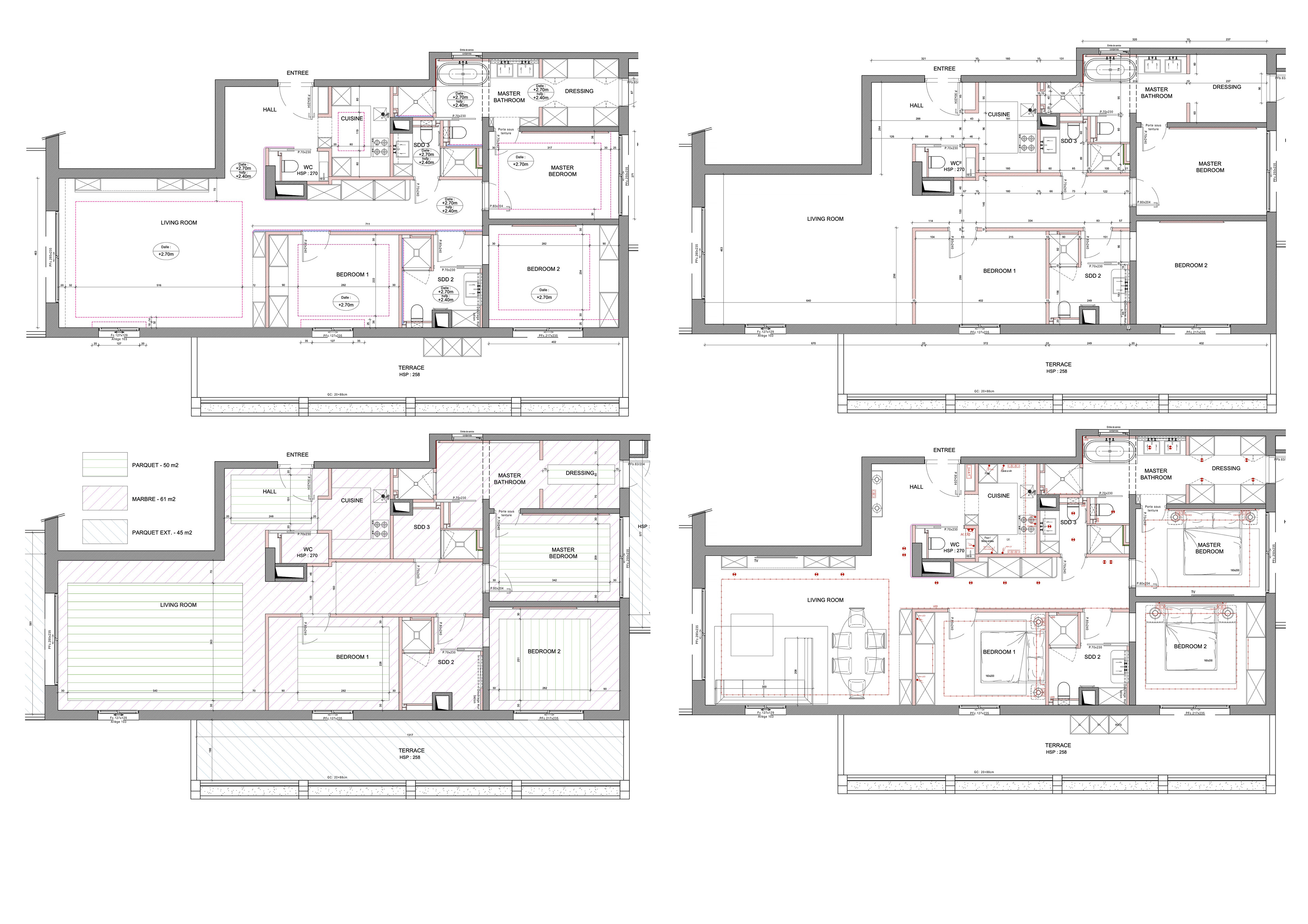
Rénovation d’un appartement d’exception situé à Monaco, pensé pour offrir une atmosphère élégante et chaleureuse. 
J’ai assuré la mission complète en collaboration avec MPMC Design, j'ai réalisé, plans, élévations, suivi du chantier ainsi que la gestion des commandes de mobilier pour garantir une cohérence esthétique et qualitative jusque dans les moindres détails.
L’utilisation de murs en bois, d’un parquet haut de gamme et de murs courbes, apporte à l’espace une ambiance douce et enveloppante, où confort et raffinement se rencontrent naturellement. Chaque choix de matière et de forme a été pensé pour créer une esthétique unique, entre sophistication discrète et confort sur-mesure.
ELEVATION DE DETAIL 
MEUBLE TV 





ELEVATION DE DETAIL 
TETE DE LIT CHAMBRE MASTER 
VISUEL 3D CHAMBRE MASTER




ELEVATION DE DETAIL 
SALLE DE BAIN / DRESSING 
VISUEL 3D SALLE DE BAIN MASTER 
VISUEL 3D DRESSING / SALLE DE BAIN MASTER
 MPMC DESIGN COLLABORATION 
Back to Top